МПЛ 0.75 Лоток тип II

Чертеж изделия:
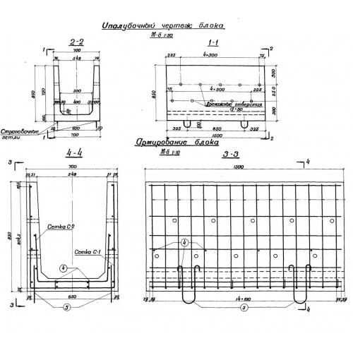
Характеристики изделия:
ПараметрЗначение
длина1500 мм
ширина700 мм
высота850 мм
масса800 кг
нормативный документАльбом № 984

Лотки  междупутные МПЛ 0.75 тип II, Альбом № 984.

Применяются лотки МПЛ 0.75 для пропуска воды вдоль железнодорожных путей. Лотки этого типа как правило укладываются в междупутьях с пониженных отметок при пилообразном профиле земляного полотна и верха балластного слоя станционных парков.

МАРКИРОВКА

Маркировка бетонных блоков МПЛ 0.75 состоит из буквенно-цифровых групп:

МПЛ бетонный блок междупутного лотка

0,75 глубина лотка в метрах