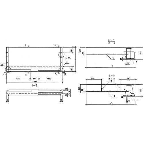
1ЛП 30.22 лестничные площадки плоские

Чертеж изделия:
Характеристики изделия:
ПараметрЗначение
длина2980 мм
ширина2200 мм
высота320 мм
масса3195 кг
нормативный документГОСТ 9818-85

1ЛП 30.22  Лестничные площадки плоские ГОСТ 9818-85.