БФ 47

Чертеж изделия:
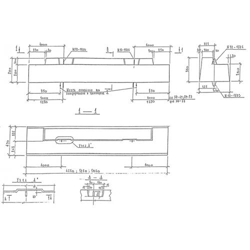
Характеристики изделия:
ПараметрЗначение
длина4660 мм
ширина470 мм
высота380 мм
масса1600 кг
нормативный документАльбом РС 1251-93

БФ 47 Балки фундаментные Альбом РС 1251-93.