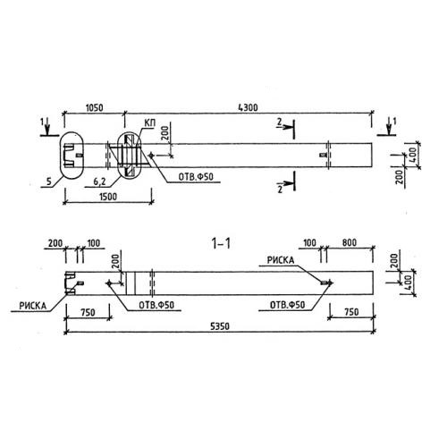
1КН 36 колонны

Чертеж изделия:
Характеристики изделия:
ПараметрЗначение
длина5350 мм
ширина400 мм
высота400 мм
масса2140 кг
нормативный документСерия 1.020-1/87

1КН 36  Колонны нижние Серия 1.020-1/87.