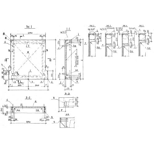
ЛПП 15.15

Чертеж изделия:
Характеристики изделия:
ПараметрЗначение
длина1540 мм
ширина1490 мм
высота240 мм
вес750 кг
серия1.050.1-3

ЛПП 15.15 Лестничные площадки ребристые по серии 1.050.1-3.