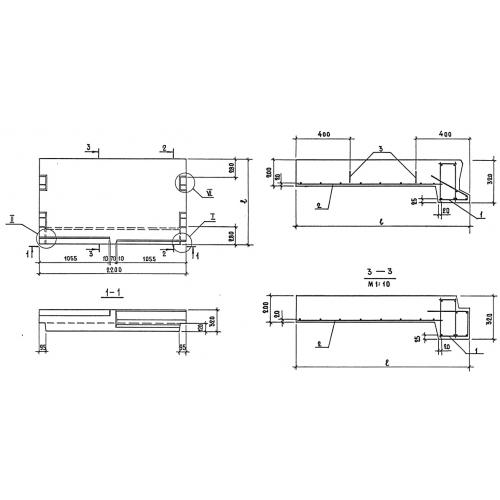
1ЛП 22.15

Чертеж изделия:
Характеристики изделия:
ПараметрЗначение
длина2200 мм
ширина1600 мм
высота320 мм
масса1815 кг
нормативный документСерия 1.152.1-8

1ЛП 22.15  Лестничные площадки плоские Серия 1.152.1-8.