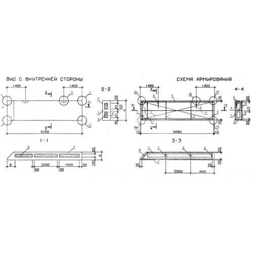
ПСТ 57.21.3.0 панели стеновые
Характеристики изделия:
| Параметр | Значение |
|---|---|
| длина | 5700 мм |
| ширина | 300 мм |
| высота | 2085 мм |
| масса | 4520 кг |
| нормативный документ | Серия 1.232.1-7 |
Цена:
Рассчитать стоимостьПСТ 57.21.3.0 Панели стеновые трехслойные (рядовые для внутренних углов зданий) Серия 1.232.1-7.
