ПСТ 6.21.2.5 панели стеновые

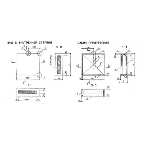
Чертеж изделия:
Характеристики изделия:
ПараметрЗначение
длина580 мм
ширина250 мм
высота2085 мм
масса460 кг
нормативный документСерия 1.232.1-7

ПСТ 6.21.2.5  Панели стеновые трехслойные (простеночные) Серия 1.232.1-7.