П 60.10

Чертеж изделия:
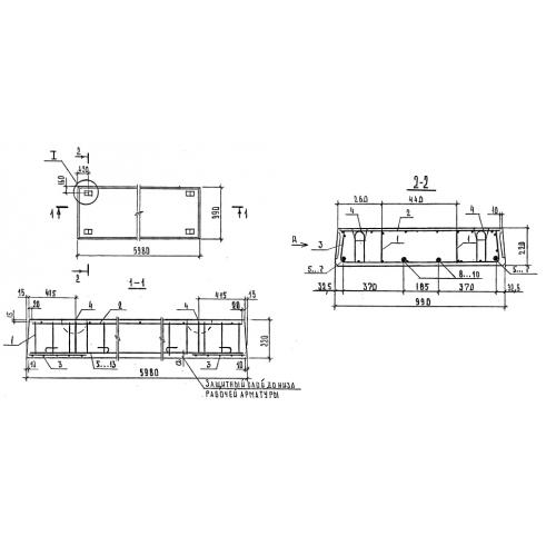
Характеристики изделия:
ПараметрЗначение
длина5980 мм
ширина990 мм
высота220 мм
вес3200 кг
серия1.243.1-5

П 60.10 Панели перекрытий беспустотные по серии 1.243.1-5.