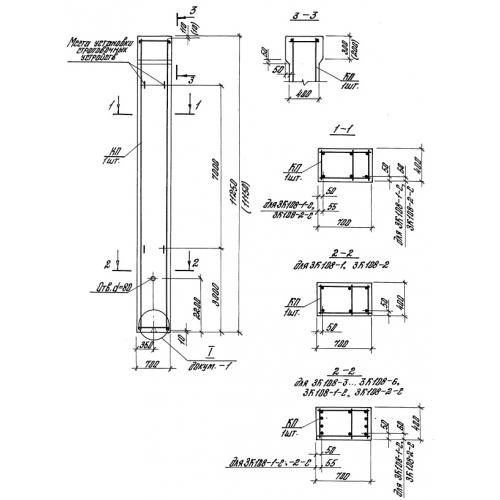
К 108
Характеристики изделия:
| Параметр | Значение |
|---|---|
| длина | 11250 мм |
| ширина | 400 мм |
| высота | 700 мм |
| масса | 8000 кг |
| нормативный документ | Серия 1.423-5 |
Цена:
Рассчитать стоимостьК 108 Железобетонные колонны прямоугольного сечения для одноэтажных производственных зданий Серия 1.423-5.
