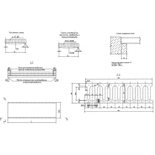
3ПБ 78-12
Характеристики изделия:
| Параметр | Значение |
|---|---|
| длина | 7780 мм |
| ширина | 1195 мм |
| высота | 300 мм |
| вес | 3450 кг |
| серия | 164/07-ПР-КЖ |
Цена:
Рассчитать стоимость3ПБ 78-12 Плита перекрытия многопустотная, выполненная методом непрерывного формования по серии 164/07-ПР-КЖ.
