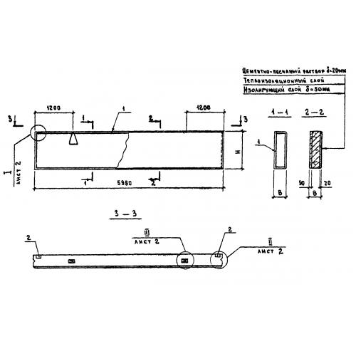
ПСД 60.9.50

Чертеж изделия:
Характеристики изделия:
ПараметрЗначение
длина5980 мм
ширина500 мм
высота880 мм
вес5000 кг
серия1.832.1-9

ПСД 60.9.50 Панели стеновые двухслойные по серии 1.832.1-9.