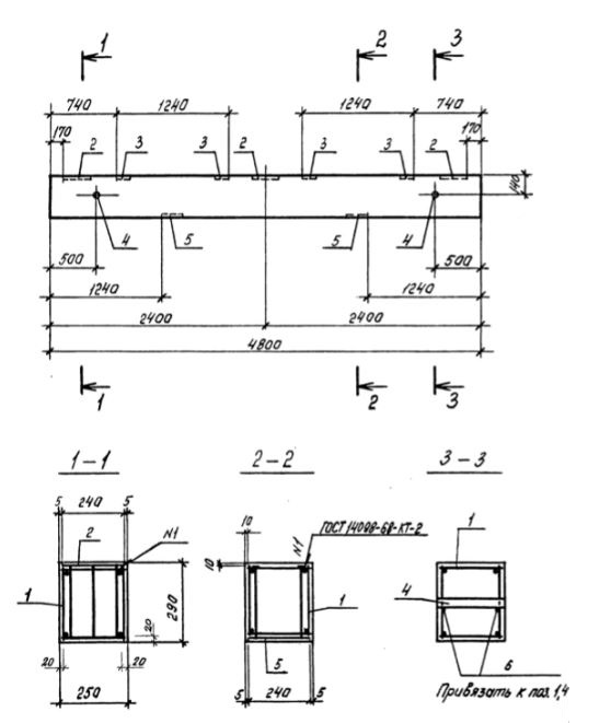
Т 4
Характеристики изделия:
| Параметр | Значение |
|---|---|
| длина | 4800 мм |
| ширина | 250 мм |
| высота | 290 мм |
| масса | 870 кг |
| нормативный документ | Серия 3.016.1-9 |
Цена:
Рассчитать стоимостьТ 4 Траверсы Серия 3.016.1-9.
| Параметр | Значение |
|---|---|
| длина | 4800 мм |
| ширина | 250 мм |
| высота | 290 мм |
| масса | 870 кг |
| нормативный документ | Серия 3.016.1-9 |
Т 4 Траверсы Серия 3.016.1-9.
