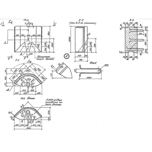
3К 11.15

Чертеж изделия:
Характеристики изделия:
ПараметрЗначение
длина1548 мм
ширина700 мм
высота1500 мм
вес2500 кг
серия3.501.1-150

3К 11.15 Блоки контурные концевые по серии 3.501.1-150.