БН 1.165

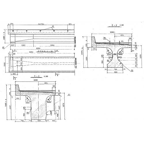
Чертеж изделия:
Характеристики изделия:
ПараметрЗначение
длина16500 мм
ширина2060 мм
высота1795 мм
вес45700 мм
серия3.501.1-175.93

БН 1.165 Балки ребристые из предварительно напряженного железобетона по серии 3.501.1-175.93.