СП

Чертеж изделия:
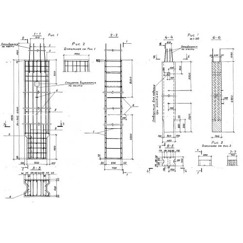
Характеристики изделия:
ПараметрЗначение
длина7960 мм
ширина1000 мм
высота700 мм
вес11000 мм
серия3.503-49

СП Промежуточный блок опоры - стенки без проемов по серии 3.503-49.