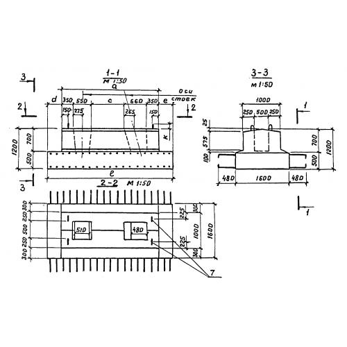
Ф-500

Чертеж изделия:
Характеристики изделия:
ПараметрЗначение
длина5000 мм
ширина2560 мм
высота1200 мм
вес15300 кг
серия3.503.1-57

Ф-500 Блоки фундамента по серии 3.503.1-57.