2ПР 9
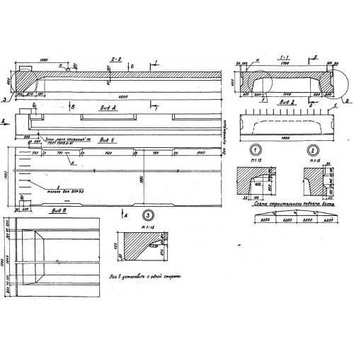
Характеристики изделия:
| Параметр | Значение |
|---|---|
| длина | 9000 мм |
| ширина | 1980 мм |
| высота | 450 мм |
| вес | 9800 кг |
| серия | 3.503.1-75 |
Цена:
Рассчитать стоимость2ПР 9 Плита ребристая с ненапрягаемой арматурой по серии 3.503.1-75.
| Параметр | Значение |
|---|---|
| длина | 9000 мм |
| ширина | 1980 мм |
| высота | 450 мм |
| вес | 9800 кг |
| серия | 3.503.1-75 |
2ПР 9 Плита ребристая с ненапрягаемой арматурой по серии 3.503.1-75.
