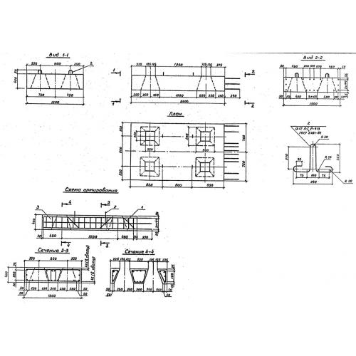
5БН 25

Чертеж изделия:
Характеристики изделия:
ПараметрЗначение
длина2500 мм
ширина1500 мм
высота400 мм
вес3130 кг
серия3.503.1-79

5БН 25 - блоки насадок.   Насадки на сваи по серии 3.503.1-79.