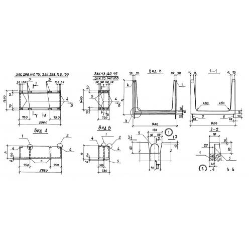
ЛК 73.140.100

Чертеж изделия:
Характеристики изделия:
ПараметрЗначение
длина730 мм
ширина1400 мм
высота1000 мм
вес600 кг
серия3.818.9-2

ЛК 73.140.100 Лотки для каналов навозоудаления по серии 3.818.9-2.