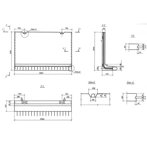
Г 20.30
Характеристики изделия:
| Параметр | Значение |
|---|---|
| длина | 3000 мм |
| ширина | 780 мм |
| высота | 2000 мм |
| вес | 2880 кг |
| серия | 3.820.1-39 |
Цена:
Рассчитать стоимостьГ 20.30 Г-образные конструкции многоцелевого нзначения по серии 3.820.1-39.
| Параметр | Значение |
|---|---|
| длина | 3000 мм |
| ширина | 780 мм |
| высота | 2000 мм |
| вес | 2880 кг |
| серия | 3.820.1-39 |
Г 20.30 Г-образные конструкции многоцелевого нзначения по серии 3.820.1-39.
