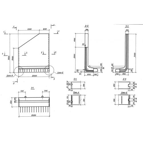
НГ 30

Чертеж изделия:
Характеристики изделия:
ПараметрЗначение
длина2000 мм
ширина940 мм
высота3000 мм
вес3300 кг
серия3.820.1-73

НГ 30 Г-образная конструкция с ныряющей вертикальной стенкой по серии 3.820.1-73.