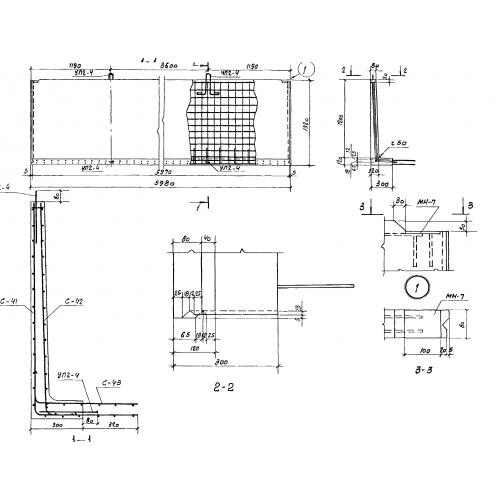
ЛТ 2-12 Лотковый элемент L-образного вида

Чертеж изделия:
Характеристики изделия:
ПараметрЗначение
длина5980 мм
ширина300 мм
высота1200 мм
масса2350 кг
нормативный документСериия 3.900.-3

ЛТ 2-12 Лотковые элементы по Серии 3.900.-3.