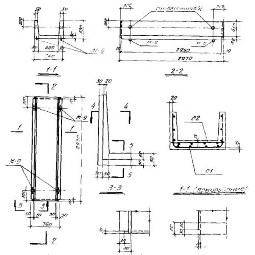
Л 2 лоток

Чертеж изделия:
Характеристики изделия:
ПараметрЗначение
длина5970 мм
ширина570 мм
высота360 мм
масса950 кг
нормативный документСерия 3.900.1-12

Л 2 Лотки теплотрасс по Серии 3.900.1-12.