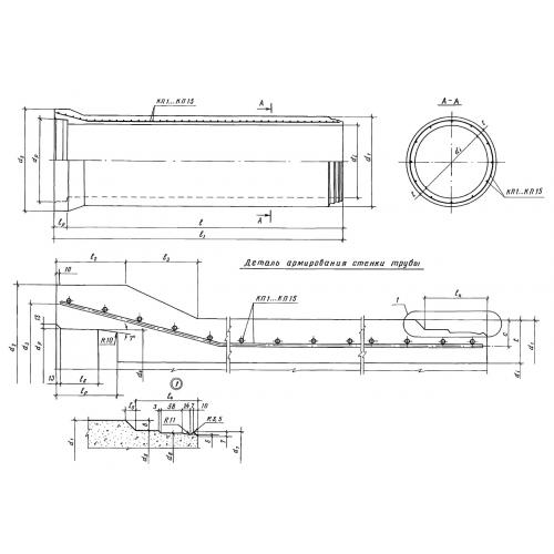
ТНН 160.50

Чертеж изделия:
Характеристики изделия:
ПараметрЗначение
длина5180 мм
ширина2208 мм
высота2208 мм
вес13180 кг
серия3.901.1-15

ТНН 160.50 Трубы низконапорные центобежнопрокатные по серии 3.901.1-15.