ЛМ 2-г

Чертеж изделия:
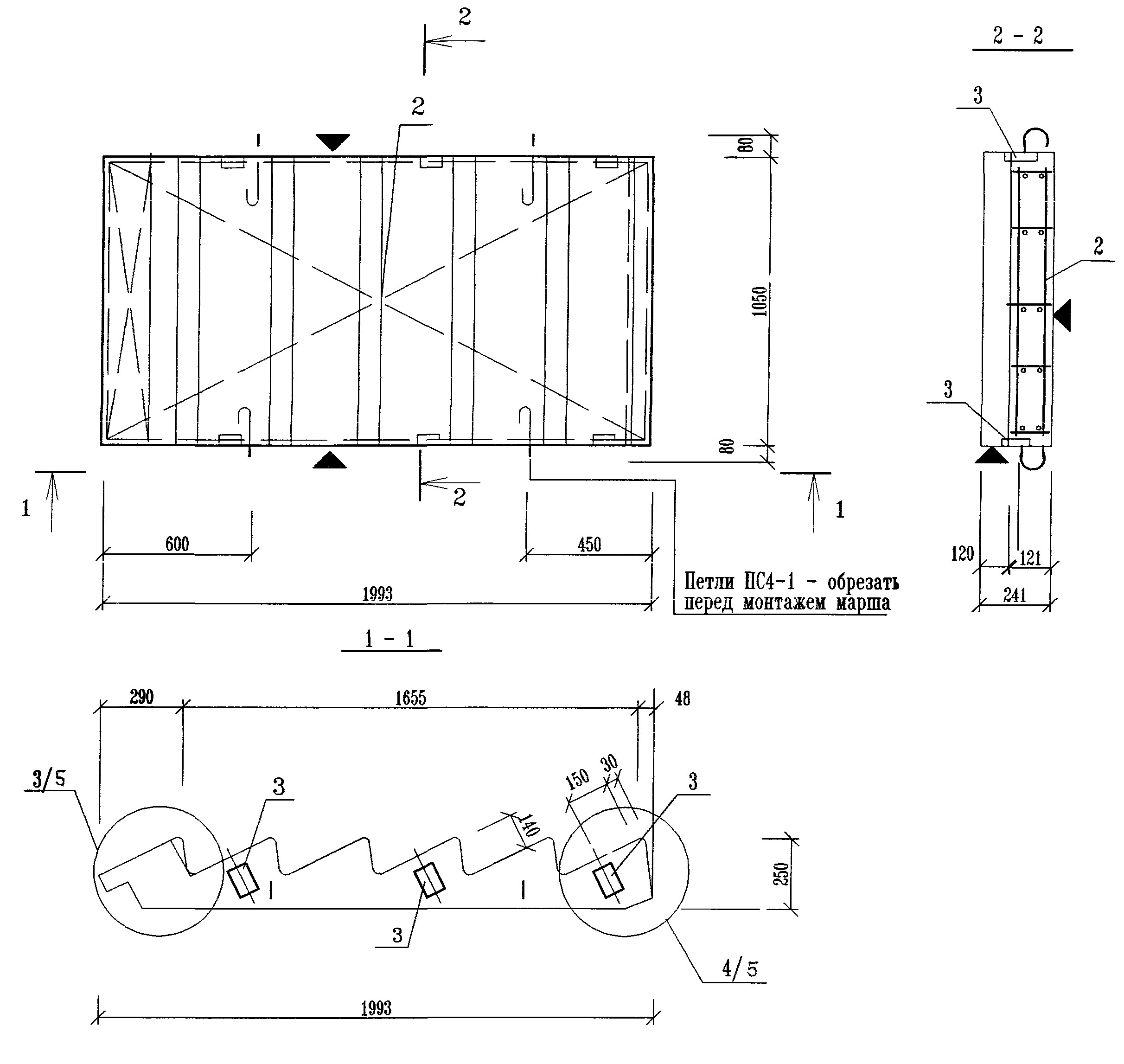
Характеристики изделия:
ПараметрЗначение
Длина L1993 мм
Ширина В1050 мм
Высота Н241 мм
Вес910 кг
СерияИЖ 4.2-1
Норма погрузки на машину (20тн)20 шт
Вагонная норма погрузки-

Лестничный марш ЛМ 2-г представленные в серии ИЖ 4.2-1 изготовлены без фризовых ступеней и с гладкой поверхностью бетона. Используются марши при строительстве лестниц в жилых зданиях с высотой 3 метра.