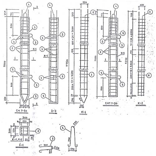
СМТ 7-30
Характеристики изделия:
| Параметр | Значение |
|---|---|
| длина | 7250 мм |
| ширина | 300 мм |
| высота | 300 мм |
| вес | 1580 кг |
| серия | РМ 2-77 |
Цена:
Рассчитать стоимостьСМТ 7-30 Сваи по серии РМ 2-77.
| Параметр | Значение |
|---|---|
| длина | 7250 мм |
| ширина | 300 мм |
| высота | 300 мм |
| вес | 1580 кг |
| серия | РМ 2-77 |
СМТ 7-30 Сваи по серии РМ 2-77.
