ПСЛ 30
Характеристики изделия:
| Параметр | Значение |
|---|---|
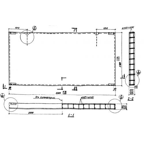
| длина | 5980 мм |
| ширина | 2985 мм |
| высота | 300 мм |
| масса | 7100 кг |
| нормативный документ | Серия СТ 02-33 |
Цена:
Рассчитать стоимостьПСЛ 30 Панели наружные стеновые из легкого бетона Серия СТ 02-33.
| Параметр | Значение |
|---|---|
| длина | 5980 мм |
| ширина | 2985 мм |
| высота | 300 мм |
| масса | 7100 кг |
| нормативный документ | Серия СТ 02-33 |
ПСЛ 30 Панели наружные стеновые из легкого бетона Серия СТ 02-33.
