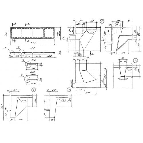
2ПГ 6

Чертеж изделия:
Характеристики изделия:
ПараметрЗначение
длина5970 мм
ширина1480 мм
высота300 мм
вес1500 кг
ШифрМ33.15/92

2ПГ 6 Ребристые плиты по Шифру М33.15/92.