БО

Чертеж изделия:
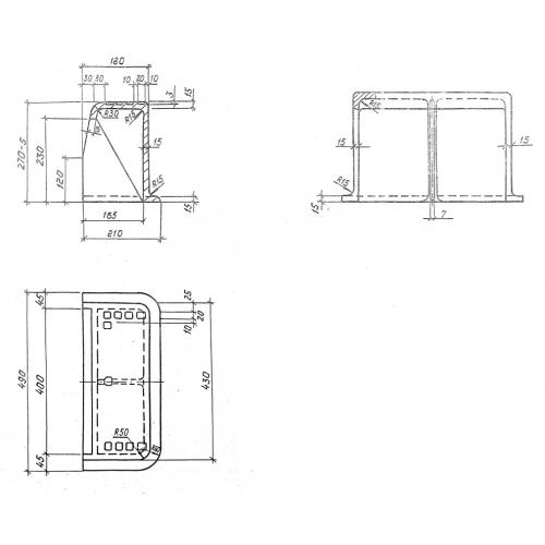
Характеристики изделия:
ПараметрЗначение
длина490 мм
ширина210 мм
высота270 мм
масса35 кг
нормативный документТП 902-09-46.88

БО   Чугунные бортовые дождеприемники по Типовому проекту ТП 902-09-46.88.